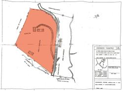
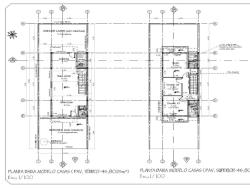
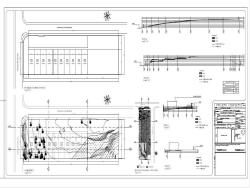
FAZENDINHA - Área 2.635 m² c/ PROJETO APROVADO condomínio 4 casas!
Área Cód. 1261A mPm é uma empresa de publicidade. Não somos imobiliária. Se você é cliente final e tem interesse em algum imóvel mPm, escolha uma imobiliária no link IMOBILIÁRIAS PARCEIRAS, no topo da página, e informe o número de Referência do imóvel.Se você é imobiliária e deseja trabalhar os imóveis mPm (COM COMISSIONAMENTO PLENO), entre em contato através do e-mail ou pelos telefones (11) 9.8193-8800 / (11) 9.8105-6481Acompanhe as ATUALIZAÇÕES no link- - - - - - - - - - - - - - - - - - - - - - - - FAZENDINHA - Área 2.635 m² c/ PROJETO APROVADO p/ condomínio de 4 casas! ESTUDA PARCERIA POSSUI ALVARÁ PARA INÍCIO IMEDIATO DA OBRA Endereço do imóvel: Rua das Camélias, s/n (Lote 03-B / Quadra D) - Fazendinha, (Bairro postal: Chácara Vale do Rio Cotia) - Carapicuíba, SP - CEP: 06355-400(Endereço da portaria da Fazendinha: Av. São Camilo, 4151, Vilarejo, Carapicuíba)AT: 2.635,00 m² (frente: 30,50 m x 80 m nas laterais)Valor de Venda: R$ 1.550.000,00 (um milhão, quinhentos e cinquenta mil reais) já com comissão de 6% (seis por cento)Valor do condomínio - Amafaz /Fazendinha (Jan/25): R$ 308,18Valor do IPTU (2025): R$ 5.144,00 ano à vista ou 12 x de R$ 571,60Permuta: não estudaDocumentação: 100% ok - Projeto aprovado na Prefeitura / Alvará de obra (válido até Dez/25) - pronto para iniciar / Meio ambiente - já livre de vegetaçãoFinanciamento Bancário: permitePlacas de imobiliárias: Não permiteVisitas de Corretores: Imóvel DESOCUPADO - LOCKER mPm - Agendar via mPm: (11) 9.8105-6481 / (11) 9.8193-8800Estado de Conservação: limpo de vegetação e terraplenagem feita.Ano da construção original: - Descrição do imóvel: Oportunidade para incorporadores.Valor estimado do VGV p/ o projeto atual: (PP informa diretamente p/ interessado).Terreno 80% plano, com parte em aclive suave na frente, e declive suave nos fundos.São 2.635m² com 30,5 metros de frente para rua e área de preservação, 80 metros nas laterais e 30 metros nos fundos.Vista deslumbrante - frente para APP e fundos para o verde da Fazendinha!Vizinho de muro com a Escola da CarolO terreno se apresenta sem vegetação e com terraplenagem pronta.Projeto aprovado para 4 casas térreas com 185m² cada, pronto para iniciar construção!- - - - - - - - - - - - - - - - - - - - - - - - - - - - Nº Matrícula: 32.959 / R.I. Carapicuíba Inscrição Cadastral: 23231.51.50.0304.00.000 / Carapicuíba - - - - - - - - - - - - - - - - - - - - - - - - - - - - A “Autorização para Comercialização” assinada pelo proprietário, foi enviada no mailing e não está disponível na internet. Caso necessário, solicite através do e-mail mpmvende@hotmail.com LINK FOTOGRAFIAS (fotografia mPm, sem marca d’água e em alta definição): https://photos.app.goo.gl/28Hg2Zhi7nrvKZoV8 Obs: Informações fornecidas e aprovadas pelo proprietário. Sujeitas a alteração sem aviso prévio.
